5 фото
16 100 000 руб.
| Срок сдачи | 2025 |
|---|
Общая информация
Новый 2-х этажный коттедж 194,6 кв.м на участке 6 соток в КП «Новая Дятловка».
Ключи – май 2026г. Завершается внешняя отделка фасада.
Дом без внутренней отделки.
Семейная и IT ипотека - 6%.
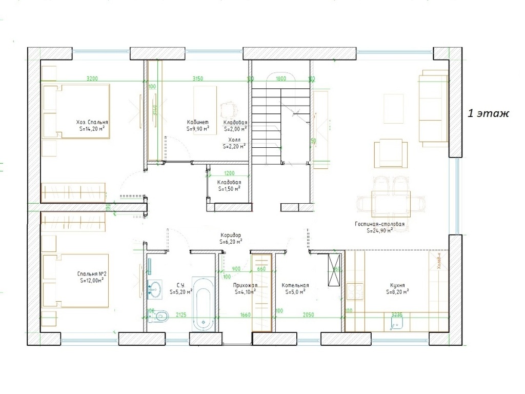
Планировка по проекту:
1 этаж: Просторная кухня-гостиная 33,1 кв.м с окнами на три стороны света и панорамной дверью на крытую террасу; три комнаты (9,9/12/14,2 кв.м), ванная комната, бойлерная, гардеробная, прихожая.
2 этаж: Три спальни (17/16,5/22), с/у с душевой, много мест для хранения.
Потолки - 3 метра.
Коммуникации: Электричество и магистральный газ заведены на участок.
Земельный участок: 6 соток, ровный, правильной формы, перед домом предусмотрено место для парковки 2-х авто. Забор - металлический штакетник высотой 2м.
Назначение - индивидуальное жилищное строительство (ИЖС). Прописка – д. Дятловка, г.о. Балашиха. Без проблем прикрепиться к садику, школе, поликлинике.
Коттедж построен из высококачественных материалов с соблюдением всех технологий:
- Фундамент: Свайный с ростверком (монолитный с армированием) с заглублением 3м;
- Стены: Газобетонный блок Бонолит, толщина внешних стен 400мм;
- Фасад: Штукатурка, покраска, фасадный декор; Цоколь утеплен и облицован термопанелями; выполнена отмостка;
- Кровля: Двухскатная из метало-черепицы с установкой снегозадержателей и водосточной системы;
- Окна Melke: Металло-пластиковые двухкамерные стеклопакеты с поворотно-откидным механизмом и французским балконом с кованным ограждением на 2-м этаже;
- Крыльцо с навесом;
- Входная металлическая дверь.
О поселке: Асфальтированные дороги. Общее освещение. Закрытая территория. В поселке оборудована детско-спортивная площадкас воркаутом и зоной отдыха, отдельной площадкой для малышей.
Чистый и свежий воздух, удаленность от трасс и многоэтажек,тишина и уединение с природой и при этом оптимальное расстояние до города- всего 3 км от мкр. Железнодорожный и 17 км от МКАД. Ближайшие станции метро: Новокосино, Железнодорожная, Некрасовка.
Инфраструктура:
Все поблизости: Детский сад, школа, амбулатория, парк, банк, почта, спортивный комплекс с плавательным бассейном в Агрогородке - 10 мин на авто/автобусе. В д.Дятловка расположена остановка школьного автобуса, где утром забирает, а после уроков привозит ребят школьный автобус. В шаговой доступности Вкус Вилл, Пятерочка, пункты Яндекс/Озон/Валдбериз, аптека и тд.
ТЦ, рестораны, кафе, сетевые магазины и другая социально-бытовая инфраструктура расположена в городе Железнодорожном - 15 минут на авто.
Как добраться:
От поселка до остановки автобуса 10 минут пешком. Автобус №26 идет до ж/д станции "Черное"- 10 минут, до ж/д станции "Железнодорожная" - 20 минут.
Открыт участок автомобильной трассы М12 Москва-Ногинск, легкое метро МЦД-4 (от Апрелевки до Железнодорожного).
Продажа от застройщика. Вся стоимость в договор. Одобрение ипотеки и сопровождение сделки - бесплатно. Индивидуальная рассрочка до 12 месяцев.
Добро пожаловать!
На сайте поиска недвижимости DOMEX представлены объявления от собственников, агентств недвижимости, застройщиков и риэлторов. У нас Вы можете сравнить все цены и подобрать нужный Вам вариант.
Ключи – май 2026г. Завершается внешняя отделка фасада.
Дом без внутренней отделки.
Семейная и IT ипотека - 6%.
Планировка по проекту:
1 этаж: Просторная кухня-гостиная 33,1 кв.м с окнами на три стороны света и панорамной дверью на крытую террасу; три комнаты (9,9/12/14,2 кв.м), ванная комната, бойлерная, гардеробная, прихожая.
2 этаж: Три спальни (17/16,5/22), с/у с душевой, много мест для хранения.
Потолки - 3 метра.
Коммуникации: Электричество и магистральный газ заведены на участок.
Земельный участок: 6 соток, ровный, правильной формы, перед домом предусмотрено место для парковки 2-х авто. Забор - металлический штакетник высотой 2м.
Назначение - индивидуальное жилищное строительство (ИЖС). Прописка – д. Дятловка, г.о. Балашиха. Без проблем прикрепиться к садику, школе, поликлинике.
Коттедж построен из высококачественных материалов с соблюдением всех технологий:
- Фундамент: Свайный с ростверком (монолитный с армированием) с заглублением 3м;
- Стены: Газобетонный блок Бонолит, толщина внешних стен 400мм;
- Фасад: Штукатурка, покраска, фасадный декор; Цоколь утеплен и облицован термопанелями; выполнена отмостка;
- Кровля: Двухскатная из метало-черепицы с установкой снегозадержателей и водосточной системы;
- Окна Melke: Металло-пластиковые двухкамерные стеклопакеты с поворотно-откидным механизмом и французским балконом с кованным ограждением на 2-м этаже;
- Крыльцо с навесом;
- Входная металлическая дверь.
О поселке: Асфальтированные дороги. Общее освещение. Закрытая территория. В поселке оборудована детско-спортивная площадкас воркаутом и зоной отдыха, отдельной площадкой для малышей.
Чистый и свежий воздух, удаленность от трасс и многоэтажек,тишина и уединение с природой и при этом оптимальное расстояние до города- всего 3 км от мкр. Железнодорожный и 17 км от МКАД. Ближайшие станции метро: Новокосино, Железнодорожная, Некрасовка.
Инфраструктура:
Все поблизости: Детский сад, школа, амбулатория, парк, банк, почта, спортивный комплекс с плавательным бассейном в Агрогородке - 10 мин на авто/автобусе. В д.Дятловка расположена остановка школьного автобуса, где утром забирает, а после уроков привозит ребят школьный автобус. В шаговой доступности Вкус Вилл, Пятерочка, пункты Яндекс/Озон/Валдбериз, аптека и тд.
ТЦ, рестораны, кафе, сетевые магазины и другая социально-бытовая инфраструктура расположена в городе Железнодорожном - 15 минут на авто.
Как добраться:
От поселка до остановки автобуса 10 минут пешком. Автобус №26 идет до ж/д станции "Черное"- 10 минут, до ж/д станции "Железнодорожная" - 20 минут.
Открыт участок автомобильной трассы М12 Москва-Ногинск, легкое метро МЦД-4 (от Апрелевки до Железнодорожного).
Продажа от застройщика. Вся стоимость в договор. Одобрение ипотеки и сопровождение сделки - бесплатно. Индивидуальная рассрочка до 12 месяцев.
Добро пожаловать!
На сайте поиска недвижимости DOMEX представлены объявления от собственников, агентств недвижимости, застройщиков и риэлторов. У нас Вы можете сравнить все цены и подобрать нужный Вам вариант.
Характеристики
| Комнат | 7 |
|---|---|
| Цена | 16 100 000 руб. |
| Площадь | 194.6 кв.м. |
| Адрес | 326 |