5 фото
169 000 000 руб.
Общая информация
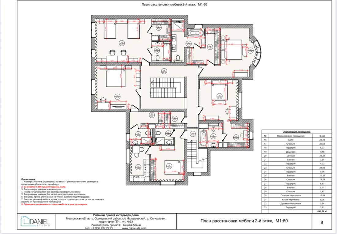
ID в ИМЛС: 20175935 Продам Дом ( white box ) без ремонта с красивым дизайн проектом , площадью 544,4 м² ( г Одинцово, деревня Солослово ул 3-я слобода 31), участок 15 сот. (Земли населенных пунктов / Индивидуальное жилищное строительство). Дом: этажность - 2.
На сайте поиска недвижимости DOMEX представлены объявления от собственников, агентств недвижимости, застройщиков и риэлторов. У нас Вы можете сравнить все цены и подобрать нужный Вам вариант.
На сайте поиска недвижимости DOMEX представлены объявления от собственников, агентств недвижимости, застройщиков и риэлторов. У нас Вы можете сравнить все цены и подобрать нужный Вам вариант.
Характеристики
| Цена | 169 000 000 руб. |
|---|---|
| Площадь | 544.4 кв.м. |
| Адрес | ул 3-я слобода, д. 32 |